В продаже дом площадью 122,2 м2 на участке 5.01 от застройщика «Самолет» в загородном проекте «Пушкино дом у воды».
 
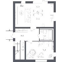
Функциональная планировка, панорамные окна и высокие потолки. Дом без отделки. 
В базовую комплектацию включена металлическая входная дверь, двухкамерные стеклопакеты. Отсутствие межкомнатных перегородок позволит вам адаптировать пространство под себя.
Все коммуникации заведены в дом: электричество, газ, канализация, водопровод и интернет.
Участок благоустроен: газон,  подготовленное парковочное место для автомобиля.
Предусмотрена ливневая канализация (ливневка), что защитит участок от подтоплений.
 
Свой дом в живописном районе Подмосковья, в 10 км от МКАД по Ярославскому шоссе. Ближайший проект ИЖС от Москвы. Поселок охраняется, въезд и выезд по пропускам. Рядом парки, пруд с набережной, леса и водохранилище. 
 
Особенности дома:
свыше 10 вариантов планировок
дома из газобетона: это тепло и энергоэффективно 
все коммуникации: газ, водопровод, канализация, электричество и быстрый интернет 
участок с газоном, воротами и площадкой для авто 
 
О поселке «Пушкино Дом у воды»: 
Образовательный центр, детский сад и творческие мастерские
Детские и спортивные площадки, зоны отдыха
Медцентр, почта, коворкинги, кафе, магазины на территории 
Профессиональная УК 
Сервисное обслуживание 24/7
Со всех сторон окружен лесами
В 15 мин. Пестовское и Учинское водохранилища
   
Покупка по 214-ФЗ по ДДУ, что гарантирует надежность и прозрачность сделки.
Выгодные варианты покупки:
1. Семейная ипотека от 5,9%, ПВ от 20,1%
2. Рассрочка на 2 года с первым взносом от 15%
   
Приглашаем Вас в офис продаж на презентацию проекта ежедневно с 10.00 до 20.00.
		
		
 
						Не нашли подходящий вариант?
+7 (495) 649-86-38
8-800-555-09-40 (звонок бесплатный)
Единый Call-центр