Шоссе: Поиск по карте new

Северо-запад

Волоколамское
Ильинское
Новорижское
Пятницкое

Запад

Рублево-Успенское
Минское
Можайское
Сколковское

Юго-запад

Боровское
Калужское
Киевское

Юг

Варшавское
Каширское
Симферопольское

Юго-восток

Егорьевское
Казанское
Новорязанское

Восток

Горьковское
Носовихинское
Щелковское

Север

Алтуфьевское
Дмитровское
Ленинградское
Рогачевское
Осташковское
Ярославское
Новосходненское
Вы можете выбрать сразу несколько шоссе.

Расстояние от МКАД, км:

От: До:

Площадь участка, сот.:

От: До:
Площадь дома, м2:

От: До:

Цена:

От: До:  

Населенный пункт:

Поиск по id:

Шоссе:

Северо-запад

Волоколамское
Ильинское
Новорижское
Пятницкое

Запад

Рублево-Успенское
Минское
Можайское
Сколковское

Юго-запад

Боровское
Калужское
Киевское

Юг

Варшавское
Каширское
Симферопольское

Юго-восток

Егорьевское
Казанское
Новорязанское

Восток

Горьковское
Носовихинское
Щелковское

Север

Алтуфьевское
Дмитровское
Ленинградское
Рогачевское
Осташковское
Ярославское
Новосходненское
Вы можете выбрать сразу несколько шоссе.

Расстояние от МКАД, км:

От: До:

Площадь участка, сот.:

От: До:
Площадь дома, м2:

От: До:

Цена:

От: До:  

Населенный пункт:

Поиск по id:

Расположение:

Станция метро: Карта метро

Авиамоторная
Автозаводская
Академическая
Александровский сад
Алексеевская
Алма-Атинская
Алтуфьево
Андроновка
Аннино
Арбатская
Арбатская
Аэропорт
Бабушкинская
Багратионовская
Балтийская
Баррикадная
Бауманская
Беговая
Белокаменная
Беломорская
Белорусская
Беляево
Бибирево
Библиотека Ленина
Битцевский парк
Борисово
Боровицкая
Боровское шоссе
Ботанический сад
Братиславская
Бульвар Адмирала Ушакова
Бульвар Дмитрия Донского
Бульвар Рокоссовского
Бунинская Аллея
Бутырская
Варшавская
ВДНХ
Верхние котлы
Верхние Лихоборы
Владыкино
Водный стадион
Войковская
Волгоградский проспект
Волжская
Волоколамская
Воробьевы Горы
Выставочная
Выставочный центр
Выхино
Говорово
Деловой центр
Динамо
Дмитровская
Добрынинская
Домодедовская
Достоевская
Дубровка
Жулебино
ЗИЛ
Зорге
Зябликово
Измайлово
Измайловская
Калужская
Кантемировская
Каховская
Каширская
Киевская
Китай-город
Кожуховская
Коломенская
Комсомольская
Коньково
Коптево
Косино
Котельники
Красногвардейская
Краснопресненская
Красносельская
Красные ворота
Крестьянская застава
Кропоткинская
Крылатское
Крымская
Кузнецкий мост
Кузьминки
Кунцевская
Курская
Кутузовская
Ленинский проспект
Лермонтовский проспект
Лесопарковая
Лефортово
Лихоборы
Локомотив
Ломоносовский проспект
Лубянка
Лужники
Лухмановская
Люблино
Марксистская
Марьина роща
Марьино
Маяковская
Медведково
Международная
Менделеевская
Минская
Митино
Мичуринский проспект
Молодежная
Московская Область
Мякинино
Нагатинская
Нагатинская
Нагорная
Нахимовский проспект
Некрасовка
Нижегородская
Новогиреево
Новокосино
Новокузнецкая
Новопеределкино
Новослободская
Новохохловская
Новоясеневская
Новые Черемушки
Озерная
Окружная
Окская
Октябрьская
Октябрьское поле
Ольховая
Орехово
Отрадное
Охотный ряд
Павелецкая
Панфиловская
Парк культуры
Парк Победы
Партизанская
Первомайская
Перово
Петровский Парк
Петровско-Разумовская
Печатники
Пионерская
Планерная
Площадь Гагарина
Площадь Ильича
Площадь Революции
Полежаевская
Полянка
Пражская
Преображенская площадь
Прокшино
Пролетарская
Проспект Вернадского
Проспект Мира
Профсоюзная
Пушкинская
Пятницкое шоссе
Раменки
Рассказовка
Речной вокзал
Рижская
Римская
Ростокино
Румянцево
Рязанский проспект
Савеловская
Саларьево
Свиблово
Севастопольская
Селигерская
Семеновская
Серпуховская
Славянский бульвар
Смоленская
Сокол
Соколиная гора
Сокольники
Солнцево
Спартак
Спортивная
Сретенский бульвар
Старокачаловская ул.
Стахановская
Столбово
Стрешнево
Строгино
Студенческая
Сухаревская
Сходненская
Таганская
Тверская
Театральная
Текстильщики
Телецентр
Теплый стан
Технопарк
Тимирязевская
Третьяковская
Тропарёво
Трубная
Тульская
Тургеневская
Тушинская
Угрешская
Улица 1905 года
Улица Академика Королева
Улица академика Янгеля
Улица Горчакова
Улица Дмитриевского
Улица Милашенкова
Улица Сергея Эйзенштейна
Улица Скобелевская
Улица Старокачаловская
Университет
Филатов луг
Филевский парк
Фили
Фонвизинская
Фрунзенская
Ховрино
Хорошёво
Хорошёвская
Царицыно
Цветной бульвар
ЦСКА
Черкизовская
Чертановская
Чеховская
Чистые пруды
Чкаловская
Шаболовская
Шелепиха
Шипиловская
Шоссе Энтузиастов
Щелковская
Щукинская
Электрозаводская
Юго-Восточная
Юго-Западная
Южная
Ясенево

Улица:

Площадь квартиры ( кв.м.):

Количество комнат:

Цена объекта( млн. руб. ):

Удаленность от метро:

Расположение:

Станция метро: Карта метро

Авиамоторная
Автозаводская
Академическая
Александровский сад
Алексеевская
Алма-Атинская
Алтуфьево
Андроновка
Аннино
Арбатская
Арбатская
Аэропорт
Бабушкинская
Багратионовская
Балтийская
Баррикадная
Бауманская
Беговая
Белокаменная
Беломорская
Белорусская
Беляево
Бибирево
Библиотека Ленина
Битцевский парк
Борисово
Боровицкая
Боровское шоссе
Ботанический сад
Братиславская
Бульвар Адмирала Ушакова
Бульвар Дмитрия Донского
Бульвар Рокоссовского
Бунинская Аллея
Бутырская
Варшавская
ВДНХ
Верхние котлы
Верхние Лихоборы
Владыкино
Водный стадион
Войковская
Волгоградский проспект
Волжская
Волоколамская
Воробьевы Горы
Выставочная
Выставочный центр
Выхино
Говорово
Деловой центр
Динамо
Дмитровская
Добрынинская
Домодедовская
Достоевская
Дубровка
Жулебино
ЗИЛ
Зорге
Зябликово
Измайлово
Измайловская
Калужская
Кантемировская
Каховская
Каширская
Киевская
Китай-город
Кожуховская
Коломенская
Комсомольская
Коньково
Коптево
Косино
Котельники
Красногвардейская
Краснопресненская
Красносельская
Красные ворота
Крестьянская застава
Кропоткинская
Крылатское
Крымская
Кузнецкий мост
Кузьминки
Кунцевская
Курская
Кутузовская
Ленинский проспект
Лермонтовский проспект
Лесопарковая
Лефортово
Лихоборы
Локомотив
Ломоносовский проспект
Лубянка
Лужники
Лухмановская
Люблино
Марксистская
Марьина роща
Марьино
Маяковская
Медведково
Международная
Менделеевская
Минская
Митино
Мичуринский проспект
Молодежная
Московская Область
Мякинино
Нагатинская
Нагатинская
Нагорная
Нахимовский проспект
Некрасовка
Нижегородская
Новогиреево
Новокосино
Новокузнецкая
Новопеределкино
Новослободская
Новохохловская
Новоясеневская
Новые Черемушки
Озерная
Окружная
Окская
Октябрьская
Октябрьское поле
Ольховая
Орехово
Отрадное
Охотный ряд
Павелецкая
Панфиловская
Парк культуры
Парк Победы
Партизанская
Первомайская
Перово
Петровский Парк
Петровско-Разумовская
Печатники
Пионерская
Планерная
Площадь Гагарина
Площадь Ильича
Площадь Революции
Полежаевская
Полянка
Пражская
Преображенская площадь
Прокшино
Пролетарская
Проспект Вернадского
Проспект Мира
Профсоюзная
Пушкинская
Пятницкое шоссе
Раменки
Рассказовка
Речной вокзал
Рижская
Римская
Ростокино
Румянцево
Рязанский проспект
Савеловская
Саларьево
Свиблово
Севастопольская
Селигерская
Семеновская
Серпуховская
Славянский бульвар
Смоленская
Сокол
Соколиная гора
Сокольники
Солнцево
Спартак
Спортивная
Сретенский бульвар
Старокачаловская ул.
Стахановская
Столбово
Стрешнево
Строгино
Студенческая
Сухаревская
Сходненская
Таганская
Тверская
Театральная
Текстильщики
Телецентр
Теплый стан
Технопарк
Тимирязевская
Третьяковская
Тропарёво
Трубная
Тульская
Тургеневская
Тушинская
Угрешская
Улица 1905 года
Улица Академика Королева
Улица академика Янгеля
Улица Горчакова
Улица Дмитриевского
Улица Милашенкова
Улица Сергея Эйзенштейна
Улица Скобелевская
Улица Старокачаловская
Университет
Филатов луг
Филевский парк
Фили
Фонвизинская
Фрунзенская
Ховрино
Хорошёво
Хорошёвская
Царицыно
Цветной бульвар
ЦСКА
Черкизовская
Чертановская
Чеховская
Чистые пруды
Чкаловская
Шаболовская
Шелепиха
Шипиловская
Шоссе Энтузиастов
Щелковская
Щукинская
Электрозаводская
Юго-Восточная
Юго-Западная
Южная
Ясенево

Площадь объекта, м2:

От: До:

Тип недвижимости:

Тип сделки:

Цена (руб.):

От: До:  

Этажность:

От: До:

Уровней от:

От: До:
расширенный фильтр

Дом 198.5 кв.м. 11.0 соток Слобода д.

ID 117 829

34 180 000 руб. RUB
Артикул: 99 125 015
Местоположение:
 / Московская область
Тверская область, Конаковский район, Слобода д.
Тип сделки:
Продажа
Площадь участка:
11.0 соток
Площадь дома:
198.5 м2

Описание:



Продается дом в КП Волжский берег, КП находится в Конаковском муниципальном округе Тверской области, на первой линии Большой Волги. С одной стороны поселок примыкает к реке, с трех других окружен вековым лесом.

Городская инфраструктура

и достопримечательности:

110 км от Москвы

40 км от Твери

4 км по воде от курорта Завидово

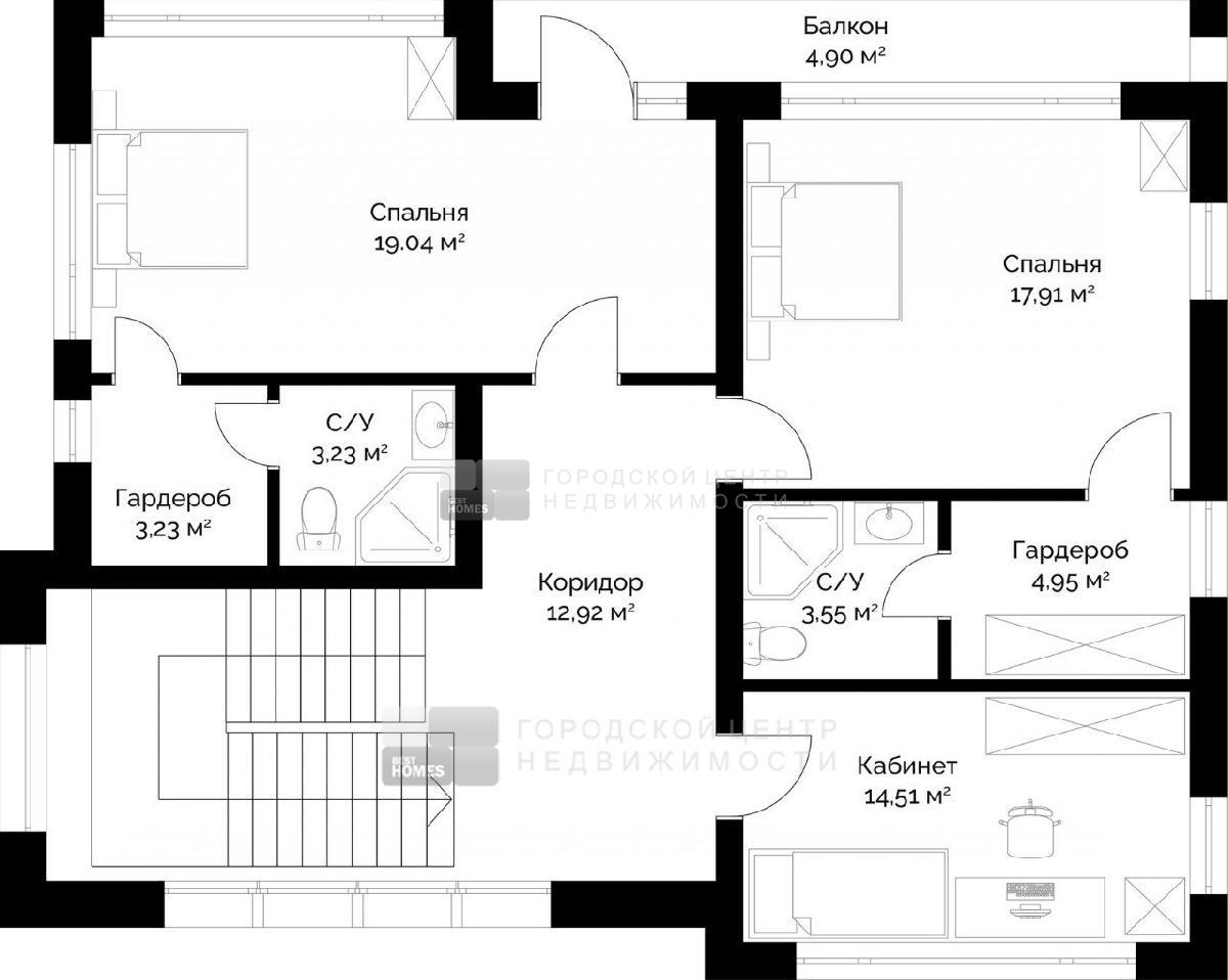
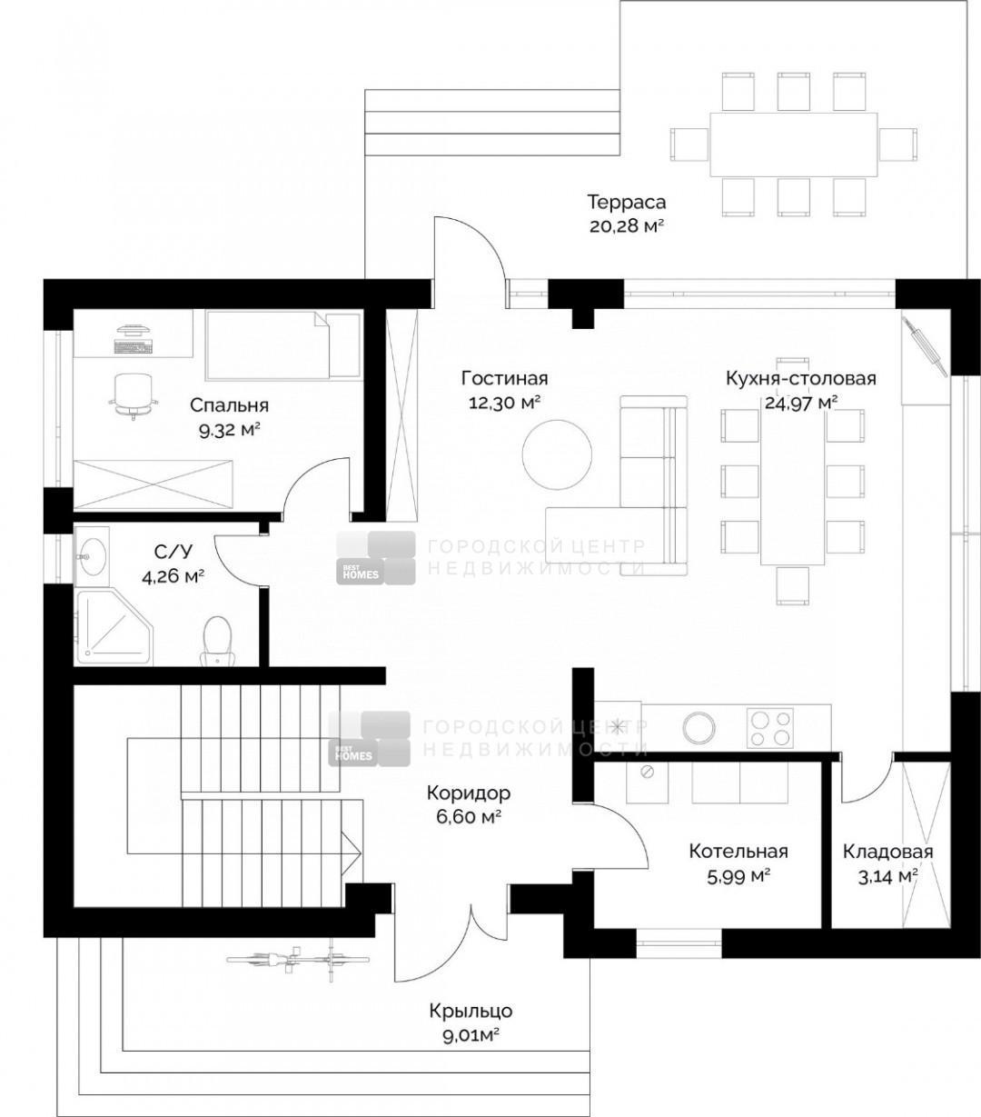
О доме: Проект домовладения WHITE199

Дом находится на участке 6,22-11,92 сот

Общая площадь дома: 198,54 кв.м

Кол-во этажей: 2 этаж

Жилая площадь: 141,61кв.м

Кол-во спален: 4комнаты

Открытая терраса: 20,28 кв.м

Кол-во санузлов: 2 санузла

КОНСТРУКТИВНЫЕ РЕШЕНИЯ

Фундамент- Монолитная плита

Наружные стены- Газобетонный блок 300 мм

Внутренние стены- Кирпич керамический полнотелый 120 мм .

Фасадная отделка- Металлические панели, доска из лиственницы.

Оконные блоки- Двухкамерный теплый стеклопакет, ПВХ профиль:

Кровля- Железобетонное перекрытие с утеплением 200 мм экструдированным пенополистеролом и устройством разуклонки из керамзитобетона . Кровля наплавляемая.

Водоотвод- Организованный с поверхности плоской кровли с помощью разуклонки и устройства парапетных воронок

Отмостка- " Мягкая" по периметру здания с засыпкой щебнем

К участкам проведены Магистральный газ. Электричество .Водоснабжение и Скоростной интернет.

Поселок огорожен по периметру, на въезде оборудован КПП с круглосуточной охраной и видеонаблюдением

ИНФРАСТРУКТУРА ДЛЯ ОТДЫХА ВНУТРИ ПОСЕЛКА

Детская площадка

Пляжная зона с лежаками

Площадка для пляжного волейбола

Набережная для прогулок

Зона отдыха с открытыми беседками

Вся инфраструктура и объекты на территории поселка выполнены в едином, современном стиле ,который гармонирует с окружающей поселок природой и располагает к умиротворению и концентрации на самых важных и дорогих вещах, Ценовой сегмент от комфорта до премиума.

Расположение:
Адрес:
Тверская область, Конаковский район, Слобода д.
Населенный пункт:
Слобода д.
ИЖС:
ДА
Участок:
Целевое использование:
ИЖС
Размер участка:
11.0 (сотки)
Дом:
Метраж дома:
198.5 м2
Кол-во комнат:
5
Количество этажей :
2
Материал стен :
Блоки
Коммуникации:
Электричество:
нет
Газ:
Магистральный газ
Вода:
скважина
Канализация:
Локальная
Телефон:
нет
Подъезд:
асфальт
Заинтересовались данным объектом?
Позвоните нам +7 (495) 649-86-38, 8-800-555-09-40 (звонок бесплатный) или оставьте заявку на просмотр
Объект на карте:
Контактная информация по объекту 117 829:
Курденков Валерий
Контактный телефон:
+7 (495) 649-86-38
8-800-555-09-40 (звонок бесплатный)
Электронная почта:
ЗАЯВКА НА ПРОСМОТР
Посмотрите похожие объекты рядом:

Дома в: Слобода д.
От МКАД: 0 км
Площадь участка: 15.0 (сотки)
Площадь дома: 153.7 м2
39 970 000 руб.

Не нашли подходящий вариант?

+7 (495) 649-86-38
8-800-555-09-40 (звонок бесплатный)

Единый Call-центр