Продается дом в КП " Сходня Лайф"
ДОМ ЛАЙФ 220 на участке 6.04 соток.
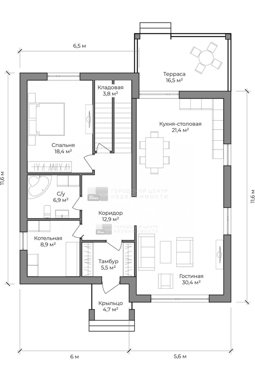
Общая площадь дома 220 кв.м 
Кухня-гостиная
5 спален
3 санузла
КОМПЛЕКТАЦИЯ "ТЕПЛЫЙ КОНТУР"
Фундамент:
ЖБ армированный 400*600 мм + сваи 300*300 мм
Монолитная плита армированная 170 мм с утепленной подушкой Пеноплекс
Стены:
Кирпич Поротерм 440 мм
ЖБ армопояс утепленный ( Пеноплекс) и оконных перемычек
Кладка на теплый раствор с армировкой каждый ряд А3 d 6 mm
Внутренние перегородки несущие - кирпич Поротерм 250 мм
Внутренние перегородки -кирпич Поротерм 120 мм
Перекрытие:
1-2 этажи: ЖБ армированная цельная монолитная плита 180 мм
2- крыша: брус 200*200 мм, утепление 200 мм
Фасад:
Декоративный камень 
Декоративная штукатурка
Терраса:
Металлический каркас на сваях обшитый террасной доской ДПК 
Металлические ограждения
Кровля:
Гибкая черепица Технониколь( 3 слоя) 
подшивка кровли - композит
Окна:
3- камерный профиль 70 мм
Двери:
Входная дверь металлическая 
Входная группа со стороны веранды витраж 2210*2910 мм
В поселке все коммуникации центральные.
Поселок СХОДНЯ ЛАЙФ, расположен на Северо-Западе Москвы в 13 км (22 минуты езды) от МКАД по Ленинградскому или Новосходненскому шоссе.
Круглосуточная охраняемая территория со всей необходимой инфраструктурой делает наш поселок идеальным местом для постройки собственного дом.
Электричка от МЦД Сходня до ближайшей станции метро доберется за 17 мин.
Пешком до городской инфраструктуры мкр.Сходня г.Химки всего 2 км.
Подходит под льготную ипотеку.
		
		
 
						Не нашли подходящий вариант?
+7 (495) 649-86-38
8-800-555-09-40 (звонок бесплатный)
Единый Call-центр
Московская область, Химки г.